Viale Bottego 43/c 43043 Borgo Val di Taro (Pr)
- Home
- /
- Appartamenti
- /
- Albareto
- /
- Appartamento Cod- Albareto 001
- 3 Camere
- 2 Bagni
- 117mq
- Albareto
- Conservazione: L'immobile è in ottime condizioni strutturale, con doppi vetri, portone blindado. Per quanto riguarda le la pavimentazione abbiamo ceramica al piano primo e parquet al piano secondo.
- Terreno no
- Utenze: Luce, Acqua, Gas, Riscaldamento a Metano e/o Stufa Pallet
- Zona: Albareto 43051 (Apri mappa)
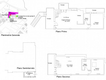
A 200 metri dal centro di Albareto (PR) , in zona tranquilla e ben soleggiata, facilmente raggiungibile, con vista sulla natura. VENDESI APPARTAMENTO CON ENTRATA INDIPENDENTE POSTO AL PRIMO E SECONDO PIANO. L'immobile è di 106 mq cos'ì suddivisi. PIANO PRIMO: Entrata tramite un Terrazzo che porta direttamente nel Soggiorno con altro Terrazzo, Angolo Cottura, Disimpegno, Bagno e Camera da Letto con Balcone. PIANO SECONDO: Gioco Bimbi con Terrazzo, Didimpegno, Camera da Letto e Bagno. Completano la proprietà al PIANO SEMINTERRATO: Garage di 11 mq e l'area condominiale ove vi si puù parcheggiare l'auto. PREZZO TRATTABILE
Note: Albareto è un comune di 2.241 abitanti in provincia di Parma. Il comune si trova in Val di Taro e fa parte della Comunità Montana Valli del Taro e del Ceno.Il territorio del Comune si estende per Kmq. 104, confinante con i Comuni di: Borgo Val di Taro (Parma), Compiano (Parma), Tornolo(Parma), Sesta Godano (La Spezia), Varese Ligure (La Spezia), Zeri e Pontremoli (Massa Carrara).
















































