Viale Bottego 43/c 43043 Borgo Val di Taro (Pr)
- Home
- /
- Rustici in pietra
- /
- Borgo Val di Taro
- /
- Rustici in pietra Borgo Val di Taro cod 001
- 1 Camere
- Borgo Val di Taro
- 98
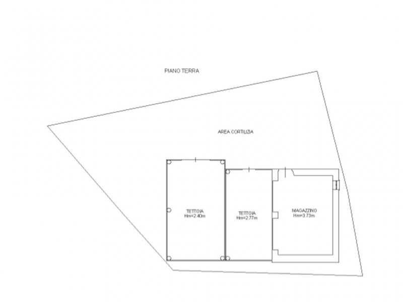
- Conservazione: I muri perimetrali del magazzino sono in buone condizioni, il tetto e composta da travi e travetti con tegole appoggiate
- Terreno 2853
- Utenze: Luce, Acqua nelle vicinanze
- Zona: Borgo Val di Taro 43043 (Apri mappa)
A circa 9 km dal Centro di Borgo Val di Taro (PR), in zona tranquilla e ben soleggiata, facimente raggiugibile dalla strada principale VENDESI RUSTICO LIBERO SU 4 LATI ALL'INERTO DI UN TERRENO DI 2600 MQ. L'immobile è disposto su un unico livello cosi distibuito: Magazzino di 37, mq e n. 2 Tettoie di 61 mq per una metratura totale di 98,00 mq. Si può fare un cambio di destinazione d'uso portandolo ad abitazione.
Note: Borgo Val di Taro è un comune di 7.149 abitanti della provincia di Parma, si estende in un'ampia conca sulla sinistra del Taro, si trova a 411 m S.L.M. Lungo l'autostrada A 15Parma-La Spezia si trova lo svincolo di Borgotaro. Il centro abitato è attraversato dalla Strada Statale 523 del Colle di Centocroci che collega Berceto con la Riviera Ligure.






































